M9

M9

  • Arquitectura REDO
  • Construcción REDO
  • Fecha 01/24
  • Presupuesto aprox 1000€/m2
  • Sup aprox 92m2
  • Fotografía REDO

M9 se trata de una vivienda con tres fachadas pero con una configuración inicial muy compartimentada que separa la luz que recibe de estas estancias independientes. Se trata entonces de unir esas entradas de luz en un espacio común.

Se abre la diagonal que une la entrada de la vivienda hasta la fachada principal dejando el recorrido siempre bañado por la luz a través de las ventanas, primero del recibidor, a continuación de la cocina y posteriormente hasta el salón, en la fachada principal.

M9
M9

El inicio de la diagonal, en el acceso a la vivienda, viene acompañada por un panelado de armarios que esconde en uno de ellos el aseo de cortesía no siendo visible a primera vista y creando una zona de almacenaje de gran utilidad para los usarios de la vivienda. La cocina, previamente un espacio cerrado y oscuro queda abierto a comedor y salón limitando ambos espacios con una isla que se apoya en la estructura de hormigón existente.

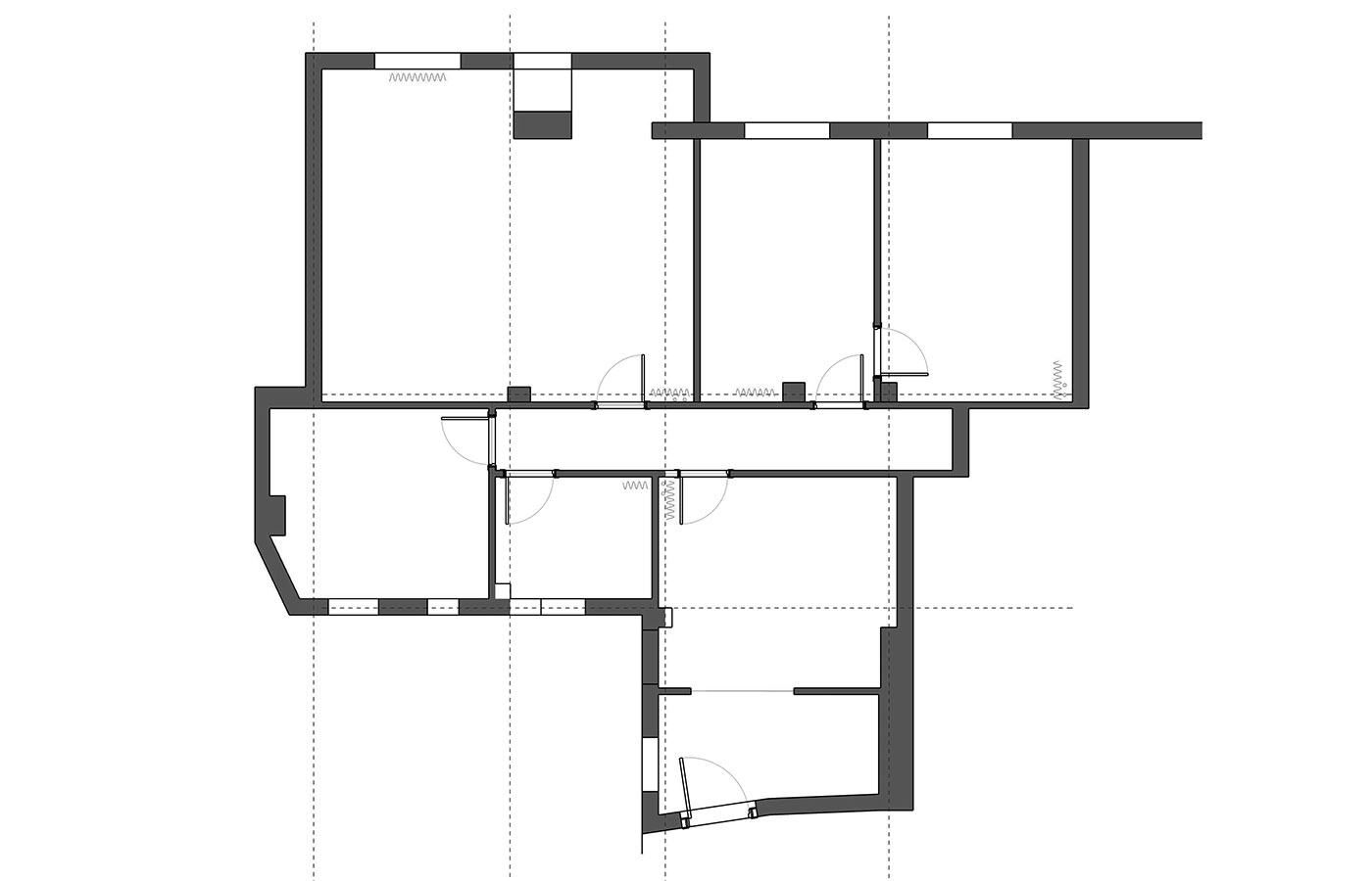
Estado original
Estado reformado
M9
M9

Las habitaciones y el baño quedan separadas de la zona común en una zona más privada dando a la fachada principal. Mientras que la vivienda coge tonos blancos y grises combinados con madera obteniendo tranquilidad y neutralidad, en el baño y el aseo se mete color y geometría en el alicatado (Yanyare).

--

Panelado y carpintería de madera: Transformad
Tarima flotante laminado: FAUS
Carpintería de aluminio: Cortizo
Porcelánico baños: Yanyare

M9