DS20

DS20

  • Arquitectura REDO
  • Construcción REDO
  • Fecha 01/22
  • Presupuesto aprox 950€/m2
  • Sup aprox 70m2
  • Fotografía REDO

DS20 se encuentra en un edificio de viviendas con patio en corrala con estructura original de madera. La vivienda, pese a tener doble fachada, carecía en su interior de luz natural. El objetivo principal era sacar el potencial a la luz que bañaba la vivienda y abrir sus originales espacios compartimentados.

Se separan la zona de noche y día a través de un tabique que divide la vivienda en dos. Salón, comedor y cocina quedan como un único espacio coronado por la estructura original de madera reforzada con vigas metálicas. La zona de noche se estructura a través de un office que da paso a las dos habitaciones.

DS20
DS20

La cocina, gran protagonista de la vivienda, se muestra como un paño azul de laminado antihuellas de la casa Transformed que da servicio a la zona de día. Para restarle peso a este plano vertical, se combina con el color blanco en la zona central. El mismo mobilairio blanco se reproduce por el salón dando a este un almacenaje sutil y amable que pueda servir de asiento en caso de ser necesario.

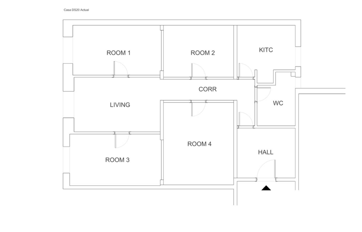
DS20 reDO - Estado actual
DS20 reDO - Estado reformado
DS20
DS20

La vivienda se equipa con un único baño que se saca de la zona de noche para servir también como baño de cortesía, se realiza un espacio general neutro y cálido dándole mayor protagonismo a la ducha con un porcelánico de color amarillo mostaza de la casa EQUIPE.

--

Listado Proovedores / Materiales:
Panelado y carpintería de madera: Transformad
Tarima flotante laminado: FAUS
Carpintería de aluminio: Cortizo
Porcelánico baños: EQUIPE

DS20